La Montant Azul
2024 Southern Utah Parade of Homes

A stunning transitional modern home design that blends luxury and natural surroundings in an architectural treasure.

Dining room with modern pieces
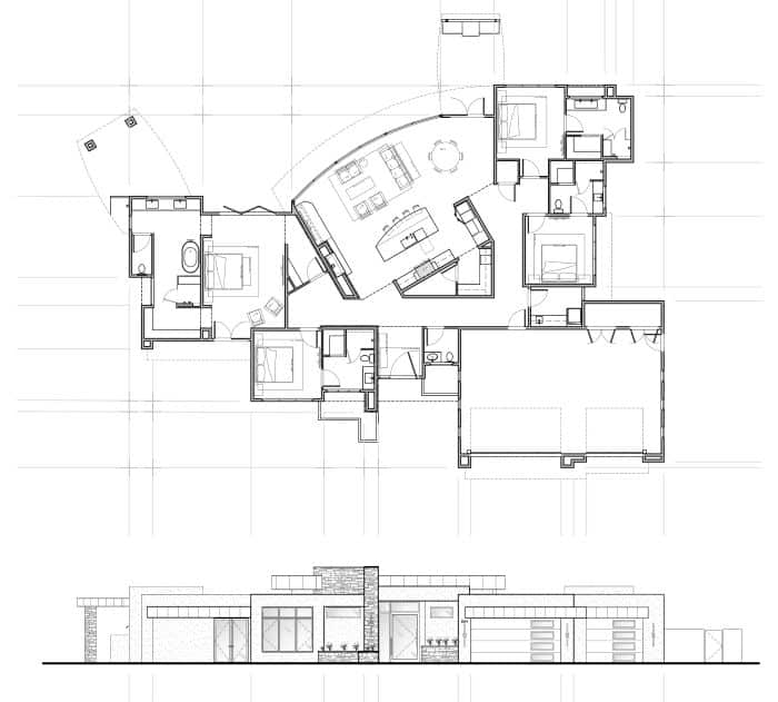
Blue Mountain Parade of Home Architectural Sketch

Key Features

From its perch on Blue Mountain, La Montant Azul stretches in the glow of the Southern Utah sun. This 3,100 square foot retreat exudes a sense of spaciousness and light. The open floor plan and soaring ceilings invite you to enjoy its friendly, airy atmosphere. The impressive 35-foot panoramic window wall frames a pristine golf course tucked neatly in the Green Springs area of Washington, Utah. We designed every inch of its layout with purpose, creating elegant spaces that are both functional and breathtaking.

As you walk through the front door, you’ll notice the stunning sunburst element that anchors the entire home design. Welcome to the home flooded with luminous rays, inside and out! At the homeowner’s request, we borrowed the sunburst and sprinkled it like glitter throughout every facet, area and niche of this home. From the arched windows and patterned patio, to the landscape artistry and wall-washed skylights, sunlight bathes this home in warmth and energy. A magnificent natural stone wall provides connectivity to each of the radiant living spaces. Built with a rare collaboration between architects, builders, and interior designers, every meticulous detail is cohesive and timeless.